Bürgerhaus und Stadtbibliothek
- Beschreibung:
- Realisierungswettbewerb 2017 - 1. Preis, zusammen mit raum3 Architekten, Bürgerhaus, Stadtbibliothek und Touristeninformation
- Bauherr:
- Stadt Hammelburg
- Standort:
- Hammelburg
- Zeitraum:
- 1. Preis - 2017
- Fertigstellung:
- voraussichtlich 2021
- BGF:
- 2.395 m²
Neuer Stadtbaustein am Marktplatz
Der Marktplatz bildet den Mittelpunkt der Altstadt Hammelburgs und bietet eine hohe Aufenthaltsqualität. Er wird von überwiegend zwei- bis dreigeschossigen, traufständigen Gebäuden mit Satteldach flankiert. Thematisch ergänzt das neue Bürgerhaus die kulturellen und sozialen Einrichtungen im Südwesten des Marktplatzes. Die gestalterische Einheit der Platzkante soll durch den Umbau zum Bürgerhaus gestärkt werden. Das zweigeschossige Bestandsgebäude bekommt einen neuen Giebel zum Markt und wird dadurch als öffentliches Gebäude im Stadtraum erkennbar, ohne dem hochaufragenden giebelständigen Rathaus die räumliche Dominanz zu nehmen. Die Dachneigung wird beim Umbau zum Bürgerhaus an die Dachneigung des Rathauses angeglichen. Der östliche Nachbar wird dadurch nicht beeinträchtigt, Belichtung und Belüftung bleiben gewährleistet. Zur Frobeniusstraße wird ein Walmdach ausgebildet. Die Gesamtkubatur des Bürgerhauses orientiert sich bis auf den neuen Giebel am bestehenden Kaufhaus. Die altstadttypische enge Stellung zu den Nachbargebäuden bleibt erhalten.
Ein zukunftsoffenes Haus für alle Generationen
Das neue Bürgerhaus wird als offenes und einladendes Haus gestaltet. Es fungiert, direkt neben dem Rathaus gelegen, als städtische „Visitenkarte“. Der Hauptzugang erfolgt von der Schauseite am Marktplatz, ein Nebeneingang befindet sich in der westlichen Kirchgasse. Das Bürgerzentrum ist ein Haus für alle Generationen, ein Begegnungsort für Menschen jeden Alters und jeder Herkunft. Die innere Erschließung ist klar strukturiert. Die Geschossebenen sind durchweg barrierefrei gestaltet. Ein Aufzug verbindet alle Einheiten miteinander, unabhängig von den Nutzungszeiten.
Touristen-Info und Bibliothek
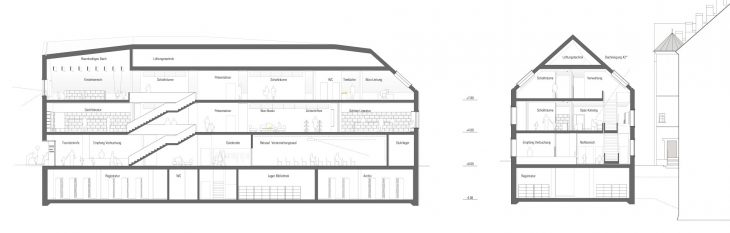
Über den Haupteingang gelangt man direkt in die Touristen-Information. Sie stellt für Touristen genauso wie für Einheimische die erste Anlaufstelle in Hammelburg dar. Direkt im Anschluss zur Informationstheke befindet sich der Bibliotheksempfang mit Verbuchungsstelle. Garderobe, WC- und Serviceräume sind für die Besucher auf kurzem Wege erreichbar. Im Eingangsbereich der Bibliothek befinden sich neben der Wartezone auch Präsentations- und Ausstellungsflächen. Die Bibliothek ist 3-geschossig als Kommunikations- und Leselandschaft entwickelt. Der Innenraum wird in “Stuben” zoniert, die eine gemütliche Atmosphäre ausstrahlen und zum Verweilen einladen. Über eine offene einläufige Treppe gelangt man vom Empfang in die Obergeschosse der Bibliothek. Im ersten Obergeschoss befinden sich die Sachbücher, der Bereich für Schöne Literatur, Non-Books Medien und Zeitschriften. In unmittelbarer Nähe zur Treppe stehen Flächen für Präsentationen zur Verfügung. Im zweiten Obergeschoss ist der großzügige und räumlich besonders spannende Kinder- und Jugendbereich untergebracht. Schalträume in den Kernzonen können flexibel als Lern- und Leseräume genutzt werden. Die Flächen sind auch für größere Kinder- und Schul- gruppen geeignet. Hölzerne Sitzfenster sind zu allen wichtigen Seiten hinaus orientiert. Sie bringen Licht ins Innere der Bibliothek, ermöglichen abwechslungsreiche Ausblicke in die Altstadt und laden zum entspannten Schmökern und Relaxen ein. Sowohl die Raumsequenz, als auch die Erschließung ist so flexibel organisiert, dass eine langfristige Umnutzungsmöglichkeit der Bibliothek gegeben ist. So legt das Bürgerhaus durch eine nachhaltige Raumorganisation den Grundstein für ein zukunftsfähiges Gebäude im Herzen der Stadt.
Veranstaltungs- und Ratssaal
Der flexibel nutzbare große Saal befindet sich im Erdgeschoss. Er orientiert sich mit seiner geschosshohen Verglasung zum Buttenmarkt und kann mit Vortrags- oder Ratsbestuhlung vielseitig Verwendung finden. Bei öffentlichen Veranstaltungen kann der Buttenmarkt mitgenutzt werden.
Schalträume
Schalträume sind in den Obergeschossen direkt an den Erschließungskernen angeordnet. Unabhängig vom Bibliotheksbetrieb können diese Räume für die Volkshochschule, die Musikschule, Vereine oder für Besprechungen genutzt werden. Bei Bedarf können sie aber auch das Raumangebot der Bibliothek erweitern und als Vorlese-, Lern-, Bildungs- und Aktionsräume dienen. Das Bürgerhaus wird durch die Schalträume ein attraktiver und unkompliziert nutzbarer Lernort für alle Bevölkerungsgruppen.
Interne Bereiche ohne Publikumsverkehr
Die internen Bereiche werden im Dachgeschoss zusammengefasst. Bibliothek und Touristeninfo teilen sich diese Flächen und nutzen die entstehenden Synergien. Die Büro-, Verwaltungs- und Besprechungsräume werden über Dachflächenfenster belichtet. Ein öffentliches Behinderten-WC mit Zugang von außen wird im Erdgeschoss vorgesehen. Es ist von der Frobeniusstraße aus erreichbar. Der Rathauskeller wird an das Untergeschoss des Bürgerhauses angebunden, es dient dem Rathaus als Fluchtweg, auch die Sanitäranlagen werden mitgenutzt. Im Untergeschoss befinden sich neben diversen Lagern auch die Räume für das Archiv der Stadtverwaltung und die Registratur.
Stadtbildtypisch Weiterbauen
Das Erscheinungsbild des Bürgerhauses ist geprägt durch eine schlichte und klare Formensprache. Die östliche und südliche Bestandswand bleiben beim Umbau erhalten. Die westliche und nördliche Fassade werden neu errichtet. das Innere des Gebäudes wird vollständig entkernt, die Stützen und Decken zurückgebaut. Die Decken der Neubaubereiche sind als Rippendecken in Halbfertigteilebauweise konzipiert, die den Raum in Gebäudequerrichtung stützenfrei überspannen. Durch die Ausbildung von Rippen lässt sich die Dicke der Decke auf ein Minimum reduzieren. Gleichzeitig lässt sich durch die Verwendung von Halbfertigteilen die erforderliche Baustelleneinrichtung unter Berücksichtigung des beengten Baufeldes reduzieren. Um das Bürgerhaus effizient errichten zu können wird das Kellergeschoss mit Deckenplatte erhalten. Dadurch wird das Ausheben einer Baugrube vermieden. Auf aufwendige Sicherungsmaßnahmen und Abfangungen des Nachbargebäudes kann dadurch verzichtet werden. Die Tragfähigkeit der Kellerdecke und der innenliegenden Stützen und Fundamente ist für die neuen Belastungen ausreichend. Die Streifenfundamente an den Längsseiten müssen lokal verstärkt werden. Diese Fundamentverstärkungen können von der Decke über dem Kellergeschoss als HDI-Injektionen ausgeführt werden. Die nichttragenden Innenwände werden in Leichtbauweise erstellt. Serielle Ausbauelemente sorgen für eine ökonomische Umsetzung. Die Lochfassade des Bürgerhauses ist entsprechend seiner Nutzung gestaltet. Die Gestaltung und Materialwahl der Fassade orientiert sich an der Gestaltungssatzung von Hammelburg.
Die verputzte Außenhaut erhält in Anlehnung an die historisch gewachsene Umgebung einen gedeckten stadtbildtypischen Farbton. Prägende Gebäudeelemente wie die (Sitz)- Fenster und Eingangstüren werden gezielt farblich abgesetzt, erhalten jeweils eine Fasche. Holzintarsien akzentuieren die Fenster- und Eingangselemente mit einladender Geste.
Der warme Werkstoff Holz wird auch zum Wegbegleiter im Inneren. Die feinsinnige Ergänzung mit farbigen Oberflächen dient der Orientierung der Besucher. Bodenbeläge werden in farbigem Sichtestrich ausgeführt, die Eingangsbereiche erhalten einen Natursteinbelag.
Die Haustechnikzentrale befindet sich im Keller, Verteilerräume werden geschossweise direkt am Treppenhaus nachgewiesen. Ein niedriger Energiebedarf des Gebäudes ist Ziel der Planung. Die Außenhülle wird thermisch optimiert. Die Bestandsaußenwände erhalten eine Innendämmung aus Kalziumsilikatplatten. Die neuen Außenwände werden in monolithischem Porenbeton errichtet.















