Sedlak Rissland Architekten

Grundig-Türme

Beschreibung:
Fassaden- und Innenraumgestaltung der Aufnahmeeinrichtung für Asylbewerber, zusammen mit Prof. Johannes Kappler
Bauherr:
Alpha Gruppe Nürnberg
Standort:
Nürnberg, Beuthener Straße
Zeitraum:
2014-1016
Fertigstellung:
2016

Farbkonzept

Am historischen Zeppelinfeld in Nürnberg befinden sich sehr unterschiedliche solitäre Bauwerke und Nutzungen wie beispielsweise das Nürnberger Stadion, das EasyCredit Haus, das Zeppelinfeld und die Messe Nürnberg. Die Baukörper der Grundig-Türme nehmen unter diesen Solitären schon allein wegen ihrer Höhenentwicklung eine besondere städtebauliche Stellung ein. Das Farbkonzept folgte daher der Idee einer im Ausdruck zurückhaltenden Instandsetzung der Bauwerke. Da es sich bei dem Gebäudekomplex um ein Ensemble aus zwei ähnlichen Türmen handelt, wurde für beide Baukörper der gleiche Grundfarbton gewählt. Durch die Verwendung eines hellen, graublauen Farbtons passen sich die Türme harmonisch in die gebaute Umgebung ein. Aufgrund ihrer Höhe stehen sie je nach Wetterlage in einem wechselnden Kontrast zur Farbe des Himmels im Hintergrund. Die Farbgestaltung soll die architektonischen Merkmale des Bestandsgebäudes stärken. Es wird bewusst auf dekorativen Zierrat verzichtet. Durch die Ausbildung von weißen Faschen werden die Fensteröffnungen als gestaltprägendes Element hervorgehoben und optisch vergrößert. Die Fassade wirkt somit wesentlich großzügiger als im Bestandsgebäude. Die Faschen sind als Blindflächen asymmetrisch um die Fensteröffnungen angeordnet und geschossweise zueinander versetzt. Der Charakter der Fassade wird auf diese Weise gestärkt und zugleich in angemessener Form durch eine leichte Verfremdung neu interpretiert.

Wohnkonzept

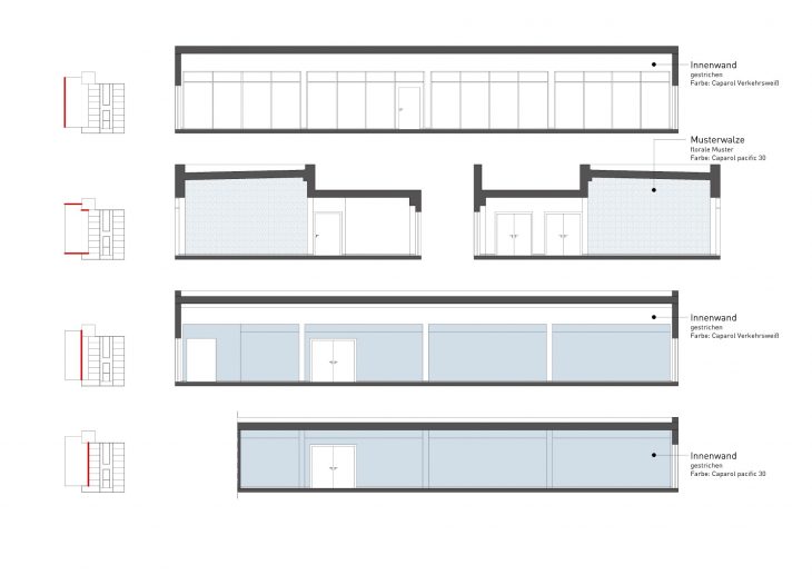
Ziel des Umbaus war es, die bestehenden räumlichen Aufteilungen so weit wie möglich zu erhalten und dennoch Zimmer zu schaffen, die den Anforderungen an das Leben und Wohnen für die Asylsuchenden aus vielen verschiedenen Kulturkreisen bestmöglich genüge tragen. In einem der Türme wurden Betreuungszimmer für Kinder eingeplant und in den Außenanlagen findet sich ein neu gestalteter Kinderspielplatz. Ein Turm beherbergt eine Küche und einen neu angebauten großen und lichtdurchfluteten Speisesaal, ebenso wurden die Dusch- und WC-Bereiche in aller Bewohnerebenen völlig neu konzipiert. Geschaffen wurden Bewohnerzimmer für 2 bis 4 Personen sowie mehrere behindertengerechte Zimmer, jedes mit einer eignen Waschgelegenheit bzw. sogar eigenen Duschen ausgestattet. Besonderen Wert legte Gerd Schmelzers alpha Gruppe, auf das Farbkonzept im Inneren der Grundig-Türme, um den ankommenden Menschen ein möglichst freundliches Ambiente mit dem Charakter einer Wohnetage zu bieten. Die Fassadenfarben finden sich daher auch im Innenbereich wieder. Während die Bewohnerzimmer weiße Wandfarben erhalten, werden in den Flurbereichen einzelne Wandelemente mit einem graublauen Farbton hervorgehoben. Diese Hervorhebung erfolgt teilweise durch vollflächig gestrichene Flächen und teilweise durch mit einer Musterwalze aufgebrachte florale Ornamente. Sie verleihen den Erschließungsflächen den gewünschten Charakter. Als Bodenbelag findet ein PVC-Belag mit Holzparkettoptik sowohl in den Einzelzimmern als auch in den Fluren Verwendung. Auch durch diese Maßnahme werden die Flure nicht als Erschließungszonen einer temporären Herberge, sondern als gemeinsame Aufenthaltsbereiche einer Wohngemeinschaft wahrgenommen.