Innovum 212
- Beschreibung:
- Realisierungswettbewerb 2011 - 2. Preis, zusammen mit Prof. Johannes Kappler, Umbau, Sanierung und Mieterausbau des ehem. Triumph Adler Geländes
- Bauherr:
- UBS Real Estate GmbH, München
- Standort:
- Nürnberg, Fürther Straße
- Zeitraum:
- 2. Preis - 2011
- Fertigstellung:
- voraussichtlich 2020
- BGF:
- 28.950 m²
- BRI:
- 101.300 m³
- Mietfläche:
- 24.500 m²
Standort
Das Mittelstandszentrum Triumph-Adler, heute Innovum 212, besitzt entlang der Hauptstraße zwischen Nürnberg und Fürth einen privilegierten Standort im Vergleich zu anderen Gewerbeparks in der Stadt. Insbesondere die Gebäude A1-A3 befinden sich im Sichtfeld einer der wichtigsten Verbindungen der Nürnberger Innenstadt mit ihrem Umland und sollten als Einheit eine starke, großmaßstäbliche Präsenz entwickeln. Diese optimale Erreichbarkeit auf städtischem Niveau setzt sich im lokalen Kontext fort.
Alleinstellungsmerkmal
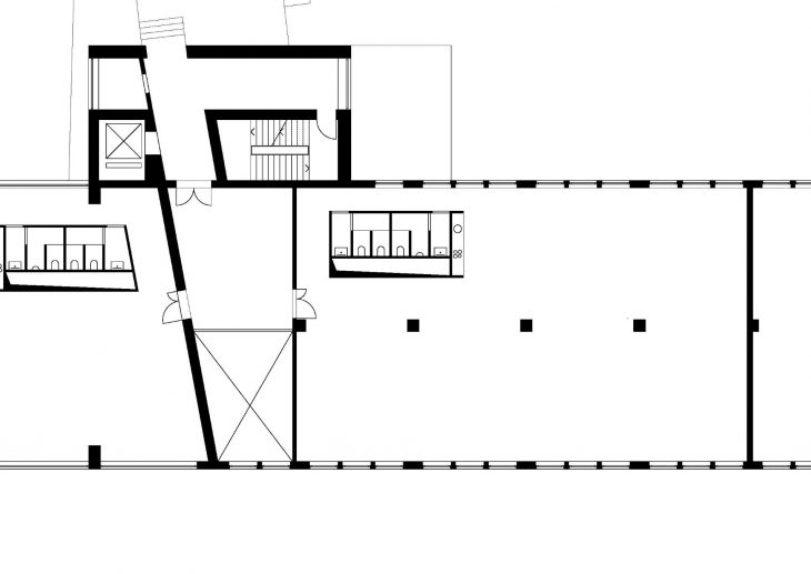
Der zu untersuchende Gebäudekomplex liegt direkt an den Ausgängen der U-Bahnhaltestelle ‘Eberhardshof’. Das ermöglicht für Fußgänger eine optimale Erreichbarkeit von der Fürther Straße aus südlicher Richtung. Für Autofahrer bietet der Innenhof einen attraktiven Parkraum direkt vor der Haustür. Diese besondere Situation sollte dazu genutzt werden, von beiden Seiten eine attraktive Eingangssituation zu realisieren.Darüber hinaus hat der Gebäudekomplex als historischer Bestand eine nicht zu unterschätzende architektonische Qualität, die im heutigen Zustand allerdings nur noch im Kopfgebäude (A1) erkennbar ist. Diese architektonische Qualität verleiht dem Ort einen besonderen Charakter, den man zum Teil nur unbewusst wahrnimmt. Ziel der Umbaumaßnahmen sollte es nicht sein, denkmalpflegerisch die Gebäude in ihren Originalzustand zu versetzen, sondern aus den Gebäuden A1-A3 ein Gesamtensemble zu machen, dessen historische Aura man wieder stärker wahrnimmt.Durch die vorhandenen Erschließungskerne ergibt sich die Möglichkeit, das Gebäude in sehr unterschiedliche Nutzungseinheiten einzuteilen. Durch die Lage der Erschließungskerne außerhalb der Fassade können diese Räume relativ einfach mit einem Aufzug nachgerüstet werden.
Flexibilität
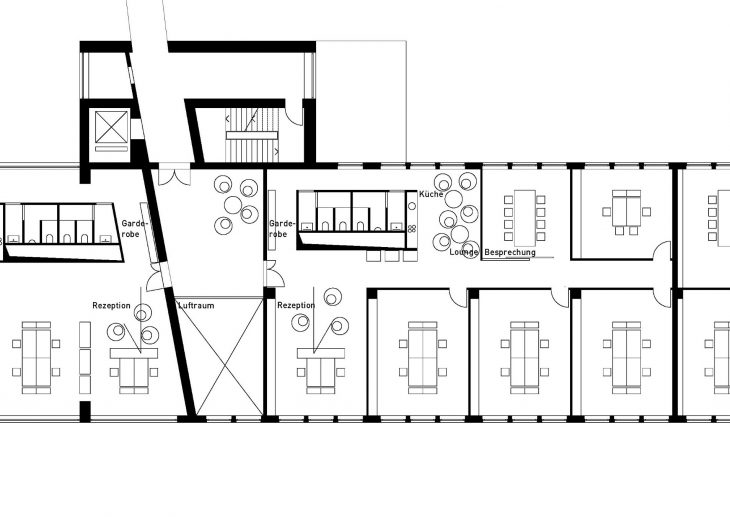
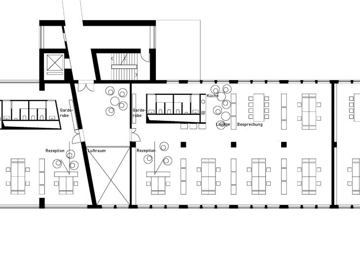
Die flexible Grundrisseinteilung ermöglicht es, die Gebäude A1, A2 und A3 an einen Nutzer (‘Single-Tenant’) zu vermieten. Der zentrale Eingang erfolgt in diesem Fall über den bestehenden Haupteingang im Kopfgebäude (A1) sowohl von der Fürther Straße als auch vom Innenhof. Für Mitarbeiter wird zusätzlich vom Innenhofbereich der Zugang der beiden Erschließungskerne weiter westlich aufgewertet und jeweils mit einem Aufzug nachgerüstet.Kommt es zu einer stärkeren Aufteilung unterschiedlicher Nutzer (‘Multiple-Tenant’), so können diese Erschließungskerne weiter um einen Zugang von der Fürther Straße ergänzt werden. Dieser Zugang erfolgt über eine Rampenanlage, die den Höhenunterschied zwischen dem Straßenniveau außerhalb des Gebäudes barrierefrei überwinden lässt. Die Rampenanlage verleiht der Erdgeschossebene des Gebäudes eine besondere Signifikanz, die von den Passanten am stärksten wahrgenommen wird. Darüber hinaus gelingt es, wertvolle Mietfläche innerhalb des Gebäudes zu erhalten.
Wertigkeit
Die besondere Wertigkeit des Gebäudes ergibt sich aus der räumlichen und gestalterischen Qualität der Eingangsbereiche. Sie ermöglichen den Mietern und Kunden ein attraktives Erreichen ihrer Einheit sowohl von der Fürther Straße als auch vom Innenhof. Die Erschließungsbereiche sind mit weiß verputzen Wänden und Steinfußböden einfach gehalten, um den industriellen Charakter des Gebäudekomplexes zu unterstreichen. Sie beinhalten Lufträume, sodass der Raum insgesamt großzügig erscheint.Auch die einzelnen Mieteinheiten sollen ihre besondere Atmosphäre dadurch erhalten, dass die ursprünglichen Elemente, wie z. B. die Rippendecke, erlebbar werden. Dabei kann das Gebäude durchaus seine industrielle Patina zeigen. Im Prinzip wird die Hülle mit einfachen Mitteln in einen werthaltigen Zustand versetzt. Die einzelnen Nutzer haben dann die Möglichkeit, diese Hülle individuell einzurichten. Dies gewährleistet auch eine mögliche Anpassung an zukünftige Nutzungsänderungen. Zusätzlich erhält jede Mieteinheit eine Sanitär-/Installationseinheit, die als freies Element im Eingangsbereich platziert ist.Die vorgeschlagenen Verbesserungen beziehen sich somit im Wesentlichen auf eine Aufwertung der Eingangsbereiche insbesondere zur Fürther Straße. Die Fassade wird weitestgehend erhalten und mit einem Wärmedämmverbundsystem versehen. Die beiden Gebäudeteile A2 und A3 werden nur durch den bestehenden Unterschied in den Fassadenöffnungen differenziert. Um die Fassade des zweigeschossigen Aufbaus stärker von der Fassade des Gebäudeteils A3 abzuheben, werden hier die Fensteröffnungen zu einem Band zusammengezogen. Die bestehende vertikale Gliederung über die Entwässerungselemente entfällt, da durch die vorgeschlagene Flachdachsanierung eine Innenentwässerung möglich wird. Für die Farbgestaltung wird die bereits erneuerte Fassade des Gebäudes A1 invertiert: weiße Putzflächen mit Glassplittern für die Außenflächen und schwarze Putzflächen für die Laibungen. Die Sonnenschutzjalousien werden in die Fassade integriert.
















