Klimaangepasstes Wohnen
- Beschreibung:
- Realisierungswettbewerb 2021 - Ankauf - "ein klimaangepasstes Haus aus Stein, Holz und viel Grün"
- Bauherr:
- Stadt Selb
- Standort:
- Selb
- Zeitraum:
- Ankauf - 2021
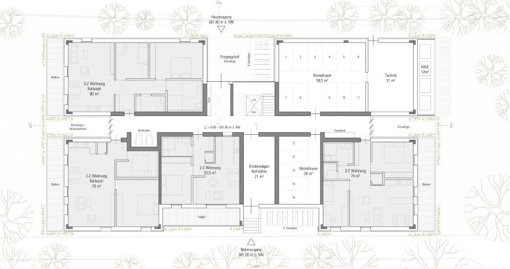
Baukörper und Situierung
Der 3-geschossige Baukörper nutzt die zur Verfügung stehende Baufeldfläche von 672qm optimal aus. Der kleeblatt-förmige Grundriss bietet das notwendige Maß an Kompaktheit, gleichzeitig sorgen die Fugen für eine Gliederung in Anlehnung an die Maßstäblichkeit der vorhandenen Siedlungsstrukturen. Die Fugen sind auch ein wichtiger Bestandteil für die natürliche Klimatisierung des Baukörpers. Auch das über Dach geführte Treppenhaus ist Teil des Klimatisierungskonzeptes. Der Hochpunkt dient als vertikaler Lüftungskamin und ermöglicht den Bewohnern die gärtnerische Nutzung der Dachflächen.
Gebäudekonzept
Flexibel gestaltbare Grundrisstypologien bieten eine kommunikative Lebenswelt mit Rückzugsmöglichkeiten und angenehm entspannter Atmosphäre. Integration, Gemeinschaft und individuelle Lebensgestaltung müssen sich gegenseitig nicht ausschließen. Der Gebäudegrundriss ist als Sechsspänner aufgebaut. Jeweils 2 Zweizimmer-, Dreizimmer- und Vierzimmer-Wohnungen bilden die Module einer Geschossebene. Im Erdgeschoss sind nur 4 Wohneinheiten angedacht, zwei davon als rollstuhlgerechte Wohnungen. Die restlichen Bereiche des Erdgeschosses bieten
Flächen für Kellerersatzräume, Haustechnik, Kinderwägen, Rollstühle und Rollatoren. Dadurch wird kein separates Kellergeschoss benötigt. Durch die leichte Grundstücksneigung wird nach Süden hin ein Gebäudesockel ausformuliert, der schwellenlos an den Eingangsbereich im Norden anschließt. Das Erdgeschoss ist rollstuhlgerecht erschlossen, durch Einbau des später angedachten Aufzuges auch alle anderen Geschossebenen. In hochwassergefährdeten Regionen kann der Sockelbereich noch höher ausgebildet werden und über eine leichte Rampenfläche im Eingangshof barrierefrei erschlossen werden. Die Flurzonen im Inneren des Gebäudes sind von drei Seiten gut belichtet und erhalten an ihren Enden leichte Aufweitungen, die zum Verweilen und zum Nachbarschaftsplausch einladen. Alle Wohnungen besitzen großzügige vorgelagerte Balkone, Loggien und Terrassen, die begrünt werden können. Die Grundrisse aller Wohnungen sind barrierefrei angelegt und von der Größe im Rahmen der Fördervorgaben. Eine Querlüftung ist in allen Wohnungen möglich. Auch die kleinen Zweizimmer-Wohnungen können über ein Küchenfenster auf 1,60m Höhe (Brandschutzvorgabe) über den halboffenen Flurbereich und den Windkamin querlüften.
Klimaangepasste Bauweise
Das Erscheinungsbild des neuen Baukörpers ist geprägt durch eine schlichte und klare Formensprache. Das Gebäude wird nach dem Prinzip der Hybridbauweise errichtet – „ein Haus aus Stein, Holz und viel Grün“. Zentrale Wandscheiben, Stützen und Decken aus Ortbeton werden kombiniert mit komplett vormontierten Außenwänden aus Brettsperrholztafeln. Die Wohneinheiten sind über die Geschosse hinweg modular angeordnet und durch das System wirtschaftlich umsetzbar. Steigschächte können in einem Zuge durchlaufen. Die Betonbauteile werden in Recycling-Beton (RC- oder R-Beton) erstellt. Serielle Ausbauelemente sorgen für eine ökonomische Umsetzung. Ein niedriger Energiebedarf ist Ziel der Planung. Die Außenhülle erhält ein Kleid aus vorpatinierter, vertikaler Lärchenholzschalung. Im Bereich der Fenster und Balkone wird die Schalung zum Screen, zum Sonnen- und Sichtschutz und zur Rankhilfe für die Fassadenbegrünung.
Fensterflächen werden auf ein gesundes Minimum reduziert, um sommerlicher Überhitzung vorzubeugen. Die Fensterlaibungen werden tief ausgebildet, um direktes Sommer-Sonnenlicht zu brechen, im Winter aber die flach stehende Sonne ins Gebäudeinnere zu leiten. Außenliegende Sonnenschutzrollos aus Mikrogewebe müssen, wenn überhaupt, nur an besonders kritischen Stellen vorgesehen werden. Das gesamte Gebäude setzt auf Low-Tech, teure Haustechnik im Sinne einer Klimamaschine ist nicht Ziel der Planung. Die Baukörperform selbst, ergänzt durch richtig
gesetzte Fugen und Öffnungen im Sinne einer natürlichen Aeration, und die Wahl geeigneter Materialien bilden die Grundlage des klimaangepassten Konzeptes. Dabei wurde auch auf historische Prinzipien des ländlichen Bauens der Region zurückgegriffen. Die Typologie des Vierseithofes und die Prinzipien des Wohnstallhauses bilden wunderbare Ausgangspunkte für die Entwicklung eines neu aufgelegten klimaangepassten Baustils. Durch die monolithische Rippenstruktur aus Ortbeton im Inneren des Baukörpers entsteht eine aktivierbare Speichermasse. Gleichzeitig werden die Flächen zur Betonkernaktivierung (thermische Bauteilaktivierung) herangezogen. Als Energieerzeuger sollte eine Kombination aus Wärmepumpe und Photovoltaik zum Einsatz kommen. Die massiven „Kühlrippen“ aus Beton werden zusätzlich über die „begrünten Schattenfugen“ am Baukörper im Sommer heruntergekühlt. Zu diesem Effekt gesellt sich die Querdurchlüftbarkeit der inneren Flurfläche in West-Ost-Richtung, steuerbar durch flexible Lamellenfenster in den Flurenden. Dadurch kann die kühlende Wirkung der Frischluftschneise am ehemaligen Bahngelände und die Winddynamik der Westwindzone zur Gebäudeklimatisierung genutzt werden. In stürmischen Jahreszeiten oder bei Unwettergefahr kann die Luftbewegung im Gebäudeinneren durch das Schließen der Lamellenfenster auch komplett unterbleiben. Der natürliche, horizontale Kühleffekt wird durch einen zentral gesetzten „Windkamin“ bzw. „Windcatcher“ am Treppenhaus ergänzt. Durch Aufheizung des Windcatchers im Bereich über dem Dach entsteht eine vertikale Luftströmung im Gebäudeinneren, durch die kühlere Luft in den Innenbereich nachgezogen wird. Gleichzeitig dient der Kamin als Rauchabzug im Brandfall. Die Fassadenelemente aus Massivholz bilden die hybride vorfabrizierbare Ergänzung zu dem massiven Grundsystem. Fassadenbegrünung und Bepflanzungen in und um das Gebäude herum erhöhen den Kühleffekt und das psychische Wohlbefinden der Bewohner. Auch die Flachdächer werden als Gründächer geplant und gärtnerisch von den Bewohnern genutzt. Die südorientierten Bereiche können zusätzlich mit Solaranlagen bestückt werden. Das Dachwasser wird gedrosselt in die Klimafugen des Gebäudes abgeführt. An den begrünten Screens der Fugen kann es abtröpfeln und verdunsten und als gekühlte Luft ins Gebäudeinnere transportiert werden. Ein kleines Sammelbecken in
der Fuge kühlt diesen verschatteten Bereich zusätzlich. Ein flächendeckendes Blitzschutzsystem schützt den Baukörper vor Blitzeinschlag bei entsprechenden Wetterlagen. Die Statik der Dachdecke wird entsprechend der Schneelastzone bemessen und erhält die gängigen Sicherheitsfaktoren. Die überhöhte Brüstung verhindert das Abstürzen der Schneemassen bei Schneeschmelze. Dadurch, dass alle Dachflächen gefahrlos begehbar sind, können diese regelmäßig im Winter von Schnee geräumt werden. Überdachte und seitlich geschlossene Loggien und Balkone verhindern das übermäßige Zuschneien dieser Bauteile.
Freianlagen
Neben dem zentralen Hauptzugang von Norden, an dem auch mehrere Fahrradabstellplätze vorgesehen sind, gibt es einen Nebenzugang von der Südseite. Dadurch ist das Gebäude auf kurzem Wege an die neu gestaltete Campusfläche angebunden, die als erweiterter Freizeit- und Erholungsraum für die Bewohner zu sehen ist und auch in Krisenzeiten ein ausreichendes Zusatzangebot darstellt. Eine Müllsammelstelle ist im Erdgeschoss integriert und auf kurzem Wege von der Zufahrtsstraße aus erreichbar.

















