Kneipp Standortverlagerung und Erweiterung
- Beschreibung:
- Realisierungswettbewerb 2017 - 2. Preis, zusammen mit bauchplan ).( Landschaftsarchitekten, Erweiterung und Neubau der Produktions- und Lagerstätten und der Verwaltungsbereiche
- Bauherr:
- Kneipp GmbH
- Standort:
- Ochsenfurt-Hohestadt
- Zeitraum:
- 2. Preis - 2017
- BGF:
- 38.500 m² BGF
Visualisierungen: www.ctrlviz.com
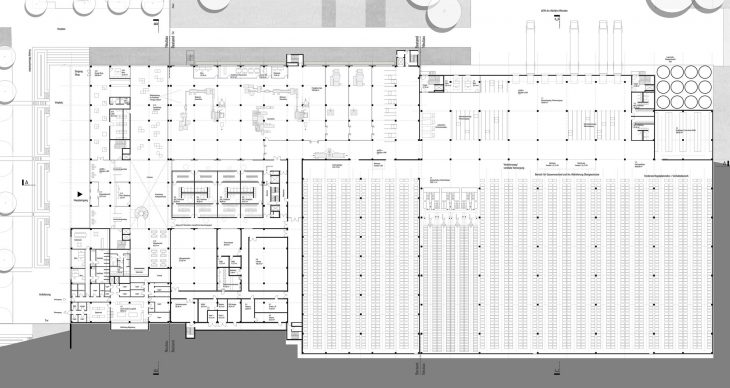
Neuordnung und Bündelung der einzelnen Funktionen
Die Denkweise und Philosophie Sebastian Kneipps lässt sich natürlich auch auf andere Bereiche übertragen. Damit eine Firma als Ganzes gut und nachhaltig funktioniert, müssen alle einzelnen Teilbereiche gepflegt und gut aufeinander abgestimmt sein. Gerade bei der vorgesehenen Standortzusammenlegung ist es um so wichtiger, die Bestandteile in der richtigen Konstellation zusammenzuführen.
Der zentrale Firmensitz in Ochsenfurth-Hohestadt wird in die Bereiche Produktion, Entwicklung, Logistik und Verwaltung gegliedert. Das vorliegende Grundkonzept sieht eine kompakte Anbindung der Erweiterungsflächen an die Bestandsgebäude vor. Die einzelnen Funktionen sollen gestärkt werden, die Produktionsabläufe sollen auf kurzem Wege erfolgen und Synergien sollen entstehen.
Das Gelände wird von Norden her erschlossen. Die Hauptzufahrt für Gäste und Angestellte erfolgt von der Johannes-Gutenberg-Straße. Die notwendigen Parkplätze werden im westlichen Grundstücksbereich nachgewiesen. Hier kann auch eine zweite Anbindung an die zukünftige Entlastungsstraße erfolgen. Die Andienung zum Logistikbereich bzw. zur Lagerhaltung befindet sich im Nordosten, am Ende der Rudolf-Diesel-Straße.
Die Erweiterungsflächen ergänzen den Bestand zu einem klaren Ensemble. Die neuen Fassadenelemente stellen ein verbindendes Motiv dar, welches den Gesamtorganismus zusammenführt, gleichzeitig bleiben die einzelnen Funktionen nach außen hin ablesbar.
Eingangsbereich
Besucher und Mitarbeiter gelangen vom Parkplatz aus über den westlichen Hauptzugang ins Gebäude. Empfangstheke und Vereinzelungsanlage regeln die sicherheitstechnischen Abläufe. Ein Foyer mit mehrgeschossigem Luftraum bietet Platz für Installationen und Ausstellungen. Seitlich davon sind weitere Ausstellungsflächen und Wartebereiche mit Garderoben angelagert. Über eine verglaste Trennwand im Ausstellungsbereich hat der Besucher einen repräsentativen Einblick in die benachbarten Produktionsflächen, “Kneipp erleben” wird hier zum Credo.
Das Casino befindet sich mit Sichtbezug zum Foyer im angeschlossenen Mezzaningeschoß. Es erhält eine großzügige Südterrasse mit Teilüberdachung und einen Zugang zum Kneipp-Park. Die zugehörige Küche inklusive Außenanlieferung befindet sich im EG unter dem Casino.
Der Kneipp-Shop als Aushängeschild ist dem Eingangsbereich repräsentativ vorgelagert. Er kann sowohl von außen, als auch vom Gebäudeinneren betreten werden. Das Zelt für die Lagerverkäufe kann in unmittelbarer Nähe zum Shop platziert werden. Die (Produktions-)Mitarbeiter benutzen, um zu den neu organisierten Umkleidekernen im Erdgeschoss zu gelangen, den gleichen Eingangsbereich wie die Besucher.
Bürowelten und Seminarbereiche
Büro- und Seminarzonen werden im neuen Kopfbau gebündelt. Aufzüge und Treppenanlagen verbinden den Eingangsbereich mit den Obergeschossen. Die halböffentlichen Seminar-, Projekt- und Workshop-Bereiche befinden sich im 1. Obergeschoss und sind direkt vom Foyer aus über eine Freitreppe erreichbar. Im 2. und 3. Obergeschoss sind die Bürolandschaften situiert. Die Arbeitsplätze der Büros sind um einen offenen Kommunikations- und Servicebereich mit Besprechungsinseln, Lounge-Ecken, Kopierer und Teeküche angeordnet. Die Büros aus dem Bestandsgebäude werden auch in den neuen Kopfbau verlagert.
Zusätzliche produktionsnahe Büros werden dezentral in die Produktionsetagen integriert. Der verglaste Luftraum im Foyer ermöglicht Rückblicke und die geschossübergreifende Kontaktaufnahme zwischen den einzelnen Bereichen. Alle Ebenen erhalten einen Hohlraumboden. Abgehängte Decken werden nur in den zentralen Bereichen von Leitungsführungen vorgeschlagen.
Produktion und Entwicklung
Die Produktions- und Laborzonen verbleiben weitestgehend an ihrem ursprünglichen Ort im Bestandsgebäude. Sie werden nach Osten hin im Modulraster 9 m x 9 m erweitert. Die laufende Produktion kann während der gesamten Bauphase aufrechterhalten werden. Durch die direkte Verknüpfung mit den Lagerbereichen werden die internen Abläufe optimiert.
Logistik
Das bestehende Hochregallager wird in zwei Bauabschnitten um 8.720m2 erweitert. Der Waren-Ein- und -Ausgang wird um 90° gedreht und dadurch optimiert. Das automatische Kleinteilelager ist direkt an das Hochregallager angeschlossen. Der Lagerbereich für brennbare Flüssigkeiten wird in Gebäuderandlage im Nordosten der Logistik untergebracht. Die Verkehrswege des Warenverkehrs erfolgen getrennt von den Besuchern und Mitarbeitern. Großzügige Wartebereiche für LKWs befinden sich im Norden der Lagerhalle.
Entwicklungsabschnitte
Der Standort in Ochsenfurth-Hohestadt wird konsequent und ganzheitlich in mehreren Abschnitten weiterentwickelt. Dabei ist die zeitliche Dimension der einzelnen Schritte flexibel gestaltbar. Entwicklungsphasen können auch zusammengefasst werden:
Entwicklungsphase 1:
temporäre Verlagerung der Ladebuchten
Entwicklungsphase 2:
Verlagerung der Produktion aus Würzburg-Heidingsfeld und Erweiterung des Hochregallagers
Entwicklungsphase 3:
Neubau des Büro-, Seminar- und Workshop-Centers als Kopfbau
Anlegen des Kneipp-Gartens und der Parkplätze
Entwicklungsphase 4:
Zweite Erweiterung des Hochregallagers
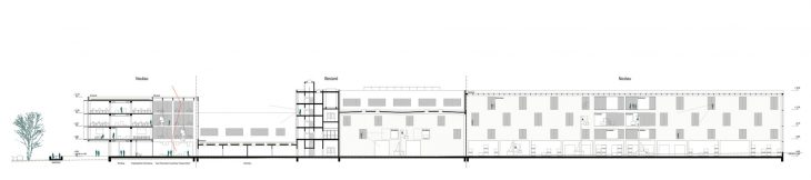
Konstruktion und Materialität – Neues Fassadenkleid mit Wiedererkennungswert
Der Kneipp-Hauptsitz in Hohestadt wird offen und einladend gestaltet, ein Ort der Kommunikation, die neue Visitenkarte der Firma. Das äußere Erscheinungsbild ist geprägt durch eine schlichte und klare Formensprache. Die tragende Konstruktion der Erweiterungsbauten besteht aus Stahlbetonstützen und punktgelagerten Stahlbetondecken. Das Grundraster der Konstruktion ist flexibel und nutzungsoffen angelegt. Die Außenwände der Produktionsflächen sind hochwärmegedämmt und erhalten eine Metallhaut als Abschluss. Die geschosshohen Fensterelemente der Bürofassaden werden als Dreifachverglasung ausgeführt. Auch die Bestandsgebäude erhalten, wo notwendig, neue Verglasungsöffnungen. Dadurch wird vor allem in den Produktionsebenen der vorgeschriebene Fensteranteil von 10% der Grundfläche garantiert. Der sommerliche Wärmeschutz wird durch außenliegende elektrisch gesteuerte Raffstores gewährleistet. Ergänzt werden sie durch eine vorgesetzte, leichte Haut aus Textilgewebe. Die Textilhaut umhüllt sowohl die neuen Büroflächen, als auch die alten und neuen Produktionsräume, sie verbindet alt und neu zu einer Einheit, schafft Identität ohne protzig zu wirken. Die Textilscreens filtern das UV-Licht, ohne großartig zu verdunkeln oder den Blick nach außen zu stören. Sie verhindern zu große Unterschiede in der Leuchtdichte des Tageslichteintrages. Die zweite Haut kann auch als flexibler Informationsträger für die Marke Kneipp genutzt werden. Strukturen von Heilpflanzen oder die Darstellung der Firmenphilosphie: die Fassade wird zum Display, zum Aushängeschild der Firma. Das Hochregallager erhält eine Verkleidung aus hochwärmegedämmten Sandwichelementen mit Trapezblech. Durch unterschiedliche Profilbreiten der Trapezbleche erhalten die Ansichten eine horizontale Akzentuierung und Gliederung. Steuerbare Oberlichter sorgen für einen gleichmäßigen Tageslichteintrag in der Lagerhalle und verhindern gleichzeitig eine sommerliche Überhitzung.
Energie und Nachhaltigkeit
Die vorgesehenen Wandaufbauten und Fensterelemente garantieren die Heizwärmebedarfskennzahl eines Niedrigenergiehauses. Eine wärmebrückenfreie Konstruktion und die Sicherstellung der Luftdichtigkeit vermeidet Energieverluste. Die Haustechnikbereiche im Bestand bleiben erhalten und sind während der Ausbaustufen komplett nutzbar. Regenerative und steuerungstechnische Komponenten des Gebäudes werden sichtbar gemacht. Die alten und neuen Produktionsflächen werden klimatisiert. Die Büro- und Seminarflächen erhalten eine mechanische Be- und Entlüftung, ergänzt durch Wärmerückgewinnung der Abluft. Die Wärmeversorgung wird durch Solarkollektoren auf den Dachflächen unterstützt. Eine Sprinkleranlage sichert den Innenbereich brandschutztechnisch ab. Dachwasser kann in Zisternen gesammelt und dem Brauchwasser zugeführt werden (z.B. für Gartenwasser / Toilettenspülung). Teile des Dachwassers werden verzögert abgegeben und dadurch im Kneipp-Park erlebbar. Es entstehen Erfahrungsmöglichkeiten mit Spielwert. Ökologie wird anschaulich gemacht und als Gestaltungselement genutzt.
Freiraum als Ort der Erholung und Interaktion – Die Natur ist die beste Apotheke
In den arrondierten Freiflächen wird die Produktpalette Kneipp mit all ihren Ingredienzien für Besucher und Mitarbeiter atmosphärisch und räumlich erfahrbar. Im Ordnungssystem der umgebenden Feldfluren sind Kräuter-Salz-Landschaften topographisch inszeniert. Der in den Hang eingeschriebene Rundweg lädt zum Erwandern ein und kann firmenstrategisch repräsentativ für Geschäftspartner und Besucher inszeniert werden. Auf dem Weg vom Parkplatz oder Foyer eröffnet sich für Gäste ein Rundblick über das Firmenareal. Auf kleinen Freiterrassen können gebäudenah oder in den Kräuterhügeln repräsentative Empfänge abgehalten werden. So wird die ganzheitliche Firmenphilosophie auf den Säulen Wasser, Ernährung, Bewegung und Pflanzen in Balance selbstverständlich veranschaulicht. Als eigenständiger, markanter Landschaftsbaustein kann das Firmenareal so einen Beitrag zur Entwicklung der Ochsenfurter Kulturlandschaft liefern.











